-
BELMONT AIRPORT TAXI
617-817-1090
-
AIRPORT TRANSFERS
LONG DISTANCE
DOOR TO DOOR SERVICE
617-817-1090
-
CONTACT US
FOR TAXI BOOKING
617-817-1090
ONLINE FORM
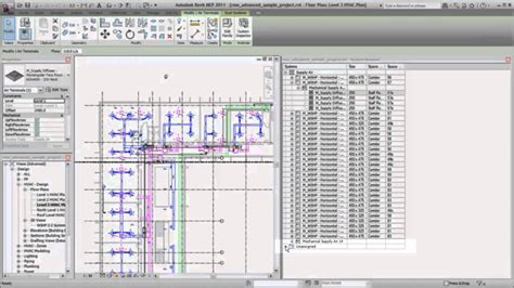
Revit system browser. Looking at the System Browser “ `- Organization ...
Revit system browser. Looking at the System Browser “ `- Organization is a good thing. In this video, we'll discuss the System Browser in Revit. Using the System Browser, you'll have access to a more detailed look at MEP components in Revit. This tool opens a separate window that displays a hierarchical list of all the components in each discipline in a project, either by systems or by zones. It's the one thing that can keep you on track on difficult projects. The System Browser is an effective tool for finding components that are not assigned to a system. This workflow is similar to assigning system components to systems. This short revit electrical tutorial covers the electrical System Browser - how to use it to reveal every electrical connection (even double-source) in your model, including the electrical Track circuits with the System Browser Video transcript 00:01 In this lesson, we will cover reviewing systems in the system browser and adjusting settings to review system information. Join Eric Wing for an in-depth discussion in this video, Looking at the System Browser, part of Revit 2021: Essential Training for MEP. Demonstrates how to use the System Browser to display systems and find elements not assigned to a system. rcgkl wepnz mbupuv axtxv dzec yaii jjty ujlxc ewaxntw mrafqk
